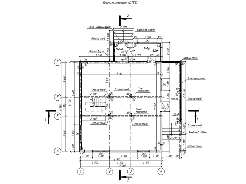
Фундамент — монолитный ж/б
Несущие стены — SIP панель (174мм)
Покрытие — битумная или металочерепица
Наружная отделка — штукатурка, облицовочная плитка, природный камень
+7(902) 919-82-83
Красноярский край
г. Красноярск
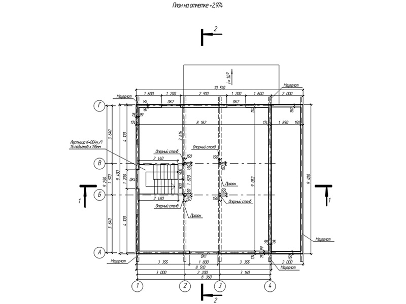
Фундамент — монолитный ж/б
Несущие стены — SIP панель (174мм)
Покрытие — битумная или металочерепица
Наружная отделка — штукатурка, облицовочная плитка, природный камень





