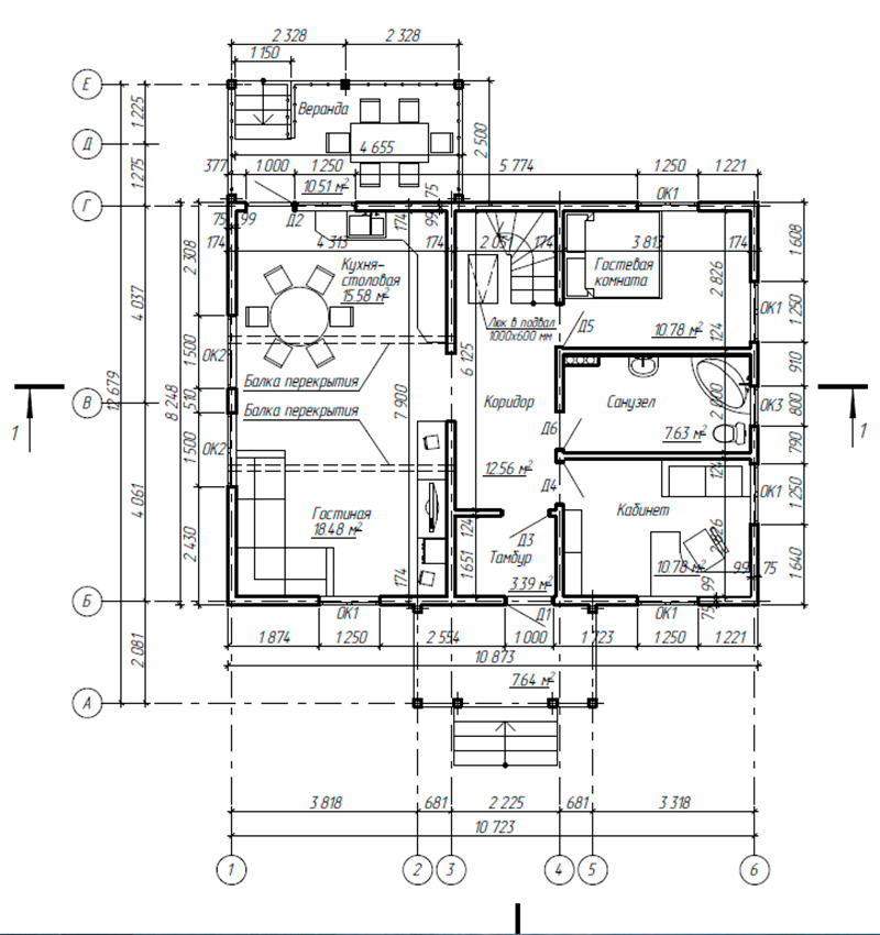
Фундамент — деревянный ростверк на винтовых сваях
Несущие стены — SIP панель (174мм)
Покрытие — мягкая черепица
Наружная отделка — фиброцементный сайдинг
+7(902) 919-82-83
Красноярский край
г. Красноярск
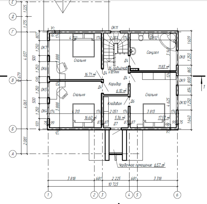
Фундамент — деревянный ростверк на винтовых сваях
Несущие стены — SIP панель (174мм)
Покрытие — мягкая черепица
Наружная отделка — фиброцементный сайдинг





