Фундамент — деревянный ростверк на ж/б сваях
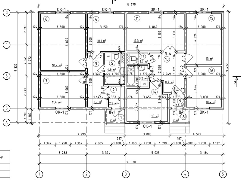
Несущие стены — SIP панель (174мм)
Покрытие — металочерепица
Наружная отделка — сайдинг
+7(902) 919-82-83
Красноярский край
г. Красноярск
Фундамент — деревянный ростверк на ж/б сваях
Несущие стены — SIP панель (174мм)
Покрытие — металочерепица
Наружная отделка — сайдинг




