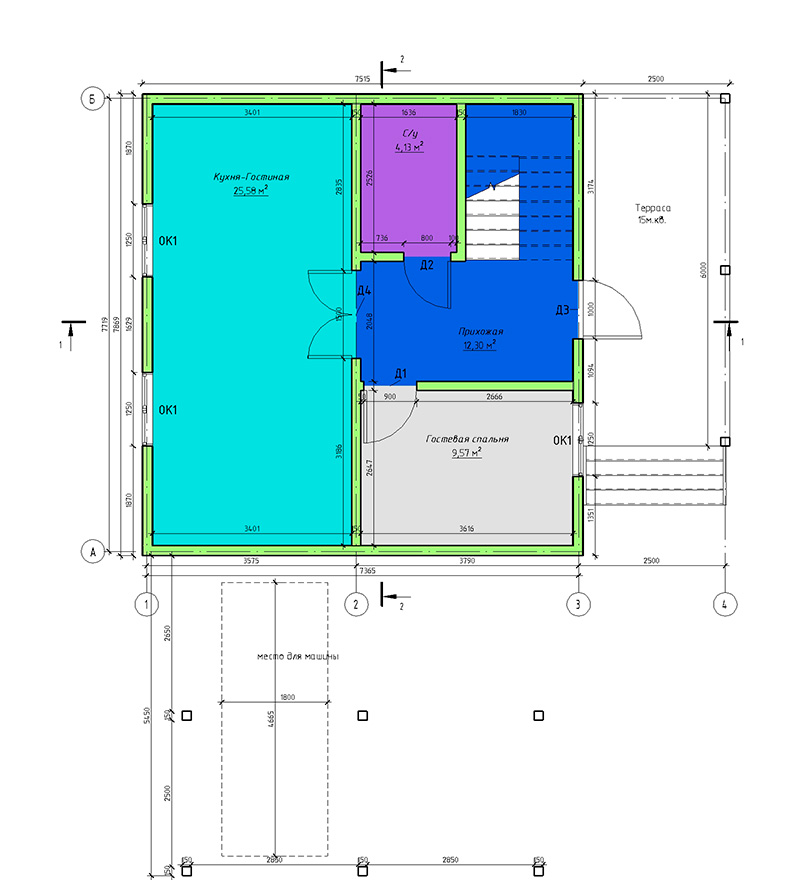
Фундамент — деревянный ростверк на винтовых сваях
Несущие стены — SIP панель (174мм)
Покрытие — металочерепица
Наружная отделка — штукатурка, доски "под фахверк"
+7(902) 919-82-83
Красноярский край
г. Красноярск
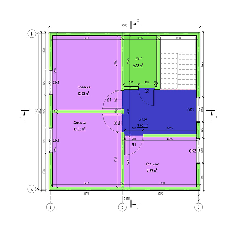
Фундамент — деревянный ростверк на винтовых сваях
Несущие стены — SIP панель (174мм)
Покрытие — металочерепица
Наружная отделка — штукатурка, доски "под фахверк"





