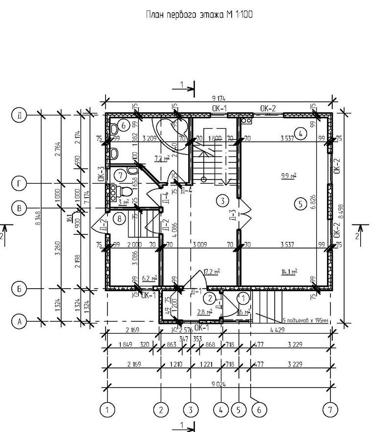
Фундамент — ленточный
Несущие стены — SIP панель (174мм)
Покрытие — мягкая черепица
Наружная отделка —металический сайдинг
+7(902) 919-82-83
Красноярский край
г. Красноярск
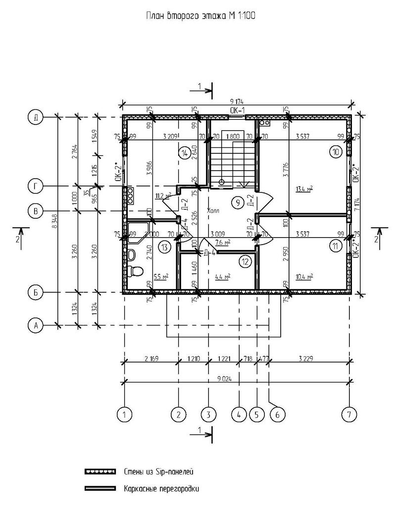
Фундамент — ленточный
Несущие стены — SIP панель (174мм)
Покрытие — мягкая черепица
Наружная отделка —металический сайдинг





