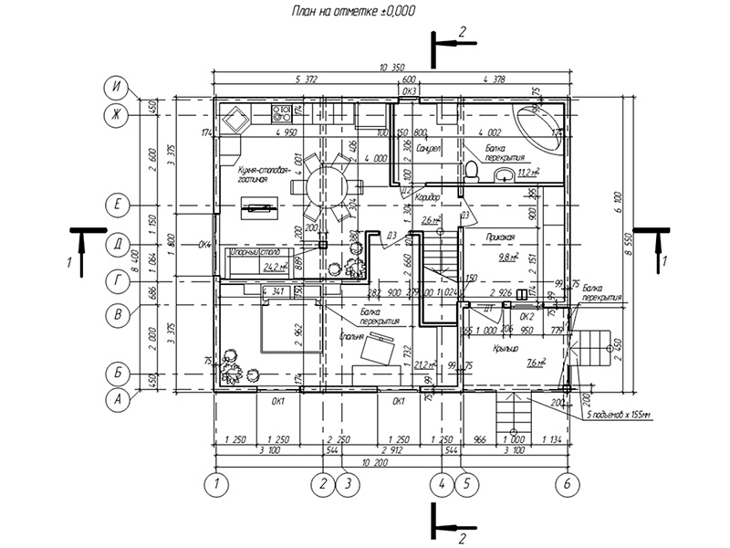
Фундамент — ленточный ж/б
Несущие стены — SIP панель (174мм)
Покрытие — битумная черепица
Наружная отделка — штукатурка
+7(902) 919-82-83
Красноярский край
г. Красноярск
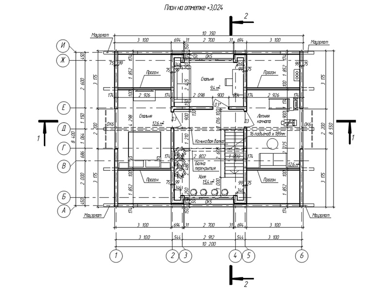
Фундамент — ленточный ж/б
Несущие стены — SIP панель (174мм)
Покрытие — битумная черепица
Наружная отделка — штукатурка





